Tôi đang lên kế hoạch đập bỏ và xây mới hoàn toàn căn nhà phố 3 tầng, diện tích 5x20 m2. Vì bố mẹ tuổi đã cao, phòng thờ ở tầng 3, mỗi lần cúng giỗ phải đi lên xuống khá vất vả, nên tôi dự tính sẽ làm thang máy trong nhà.
Tuy nhiên, với diện tích nhà hạn chế, việc cân đối bố trí các phòng chức năng đảm bảo nhu cầu sinh hoạt của gia đình 3 thế hệ trở nên khó khăn. Nhờ chuyên gia tư vấn giúp phương án phù hợp, đi kèm những lưu ý khi lắp đặt và chi phí?
Chuyên gia tư vấn:
Thang máy trong nhà sẽ giúp việc di chuyển của các thành viên trở nên dễ dàng hơn, đặc biệt phù hợp với gia đình có người cao tuổi, người bệnh hoặc gặp khó khăn khi đi lại, cần vận chuyển hàng hóa.
Về lý thuyết, nhà phố 3 tầng chưa cần lắp đặt thang máy vì sẽ tốn chi phí lắp đặt, chưa kể mất thời gian cho khâu bảo hành, bảo trì trong quá trình sử dụng. Đồng thời, các không gian chức năng phục vụ nhu cầu sinh hoạt, vui chơi cũng bị thu hẹp, do đã mất một phần diện tích đáng kể cho thang máy và thang bộ. Thông thường, nhà có quy mô từ 4,5 tầng trở lên, lắp đặt thang máy sẽ hợp lý hơn.
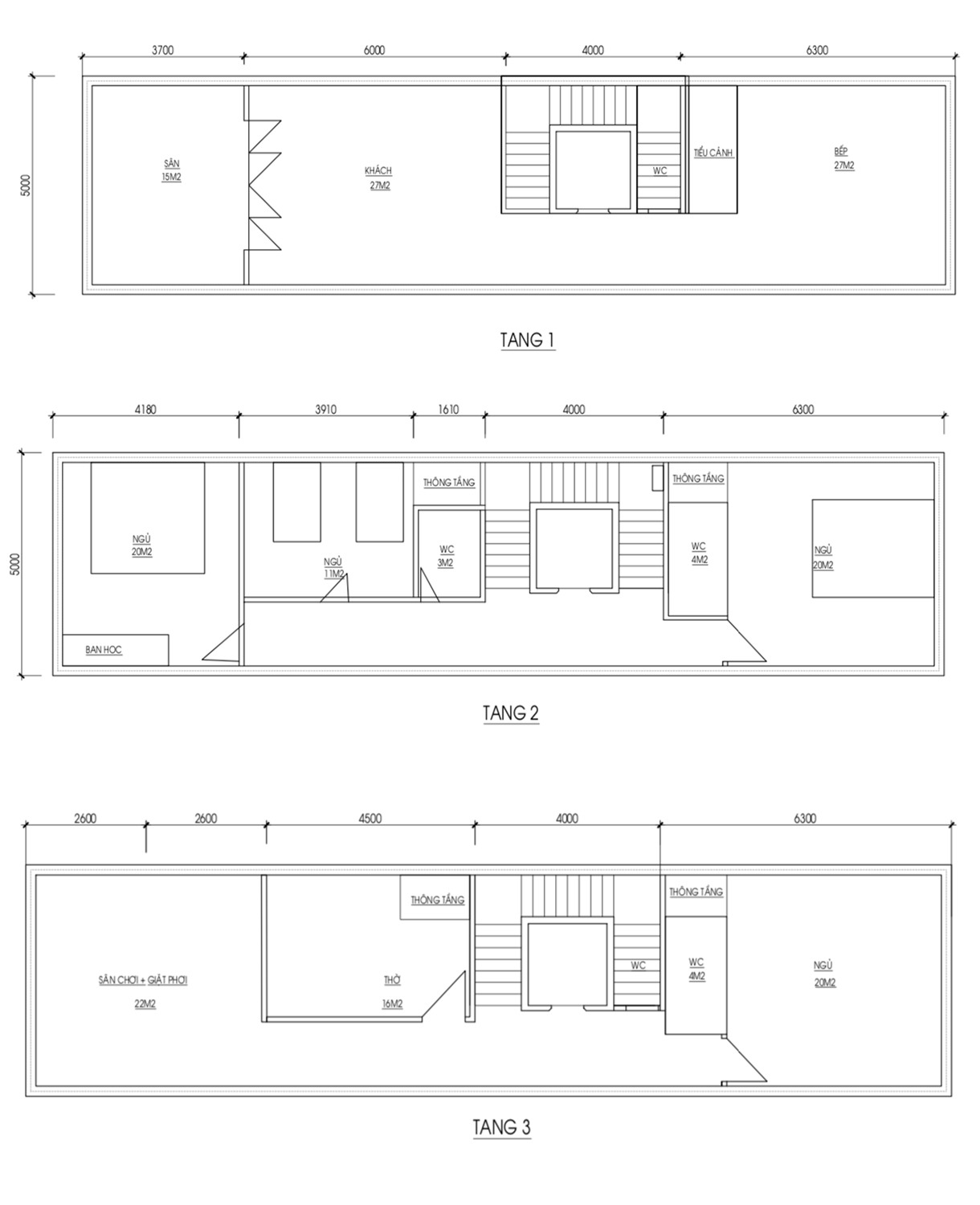
Với trường hợp của bạn, nếu thấy nhu cầu này là cần thiết và giúp gia đình sinh hoạt thuận tiện và thoải mái hơn, thì vẫn có thể lắp đặt. Tuy nhiên, cần chú ý cân đối thêm về kích thước, vị trí đặt thang sao cho phù hợp. Nhà 5x20m tức là bề rộng nhỏ, bề dài sâu, bố trí thang máy ở giữa nhà là phù hợp nhất. Cầu thang bộ ôm xung quanh thang máy như thiết kế hình bên dưới.

Lắp thang máy cho nhà phố 3 tầng
Tôi muốn lắp thang máy trong nhà để tiện đi lại, nhưng lo ngại sẽ phải thu hẹp không gian sinh hoạt, vui chơi của cả gia đình.
Tôi đang lên kế hoạch đập bỏ và xây mới hoàn toàn căn nhà phố 3 tầng, diện tích 5x20 m2. Vì bố mẹ tuổi đã cao, phòng thờ ở tầng 3, mỗi lần cúng giỗ phải đi lên xuống khá vất vả, nên tôi dự tính sẽ làm thang máy trong nhà.
Tuy nhiên, với diện tích nhà hạn chế, việc cân đối bố trí các phòng chức năng đảm bảo nhu cầu sinh hoạt của gia đình 3 thế hệ trở nên khó khăn. Nhờ chuyên gia tư vấn giúp phương án phù hợp, đi kèm những lưu ý khi lắp đặt và chi phí?
Độc giả: Hùng
Chuyên gia tư vấn:
Thang máy trong nhà sẽ giúp việc di chuyển của các thành viên trở nên dễ dàng hơn, đặc biệt phù hợp với gia đình có người cao tuổi, người bệnh hoặc gặp khó khăn khi đi lại, cần vận chuyển hàng hóa.
Về lý thuyết, nhà phố 3 tầng chưa cần lắp đặt thang máy vì sẽ tốn chi phí lắp đặt, chưa kể mất thời gian cho khâu bảo hành, bảo trì trong quá trình sử dụng. Đồng thời, các không gian chức năng phục vụ nhu cầu sinh hoạt, vui chơi cũng bị thu hẹp, do đã mất một phần diện tích đáng kể cho thang máy và thang bộ. Thông thường, nhà có quy mô từ 4,5 tầng trở lên, lắp đặt thang máy sẽ hợp lý hơn.
Với trường hợp của bạn, nếu thấy nhu cầu này là cần thiết và giúp gia đình sinh hoạt thuận tiện và thoải mái hơn, thì vẫn có thể lắp đặt. Tuy nhiên, cần chú ý cân đối thêm về kích thước, vị trí đặt thang sao cho phù hợp. Nhà 5x20m tức là bề rộng nhỏ, bề dài sâu, bố trí thang máy ở giữa nhà là phù hợp nhất. Cầu thang bộ ôm xung quanh thang máy như thiết kế hình bên dưới.
Một mẫu thang máy và thang bộ phổ biến tại nhà phố.







